COMISION 0 %
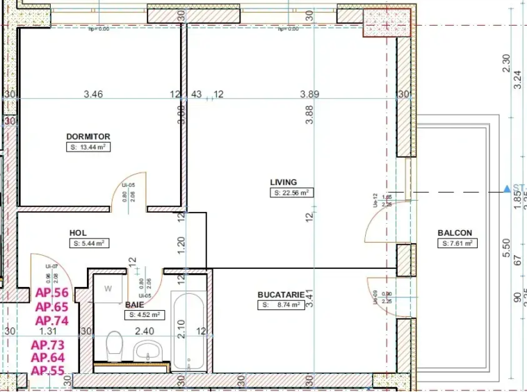
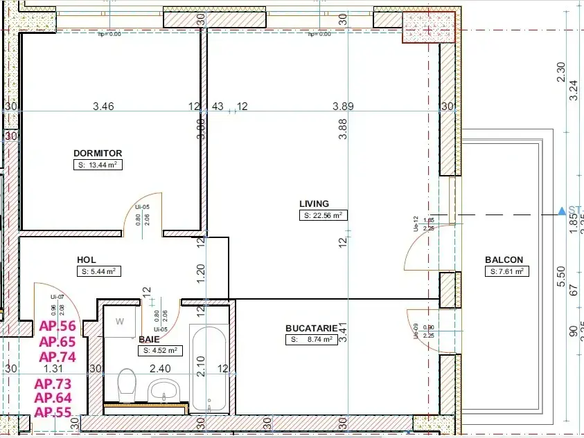
Va propunem spre vanzare un aparatament cu 2 camere, decomandat, bucatarie deschisa cu posibilitate de a se inchide, sut 62,31 mp din care balcon 7,61 mp situat la etajul 8 al unui imobil cu regim de inaltime S+P+4E+5R+8R+9R+10R+11E Duplex
Imobilul este construit pe structura din stalpi si diafragme cu lățimea de 40 cm din beton armat, grinzi și planșee din beton armat. Fațada este parțial ventilată cu fibrociment Eqitone gama Tectiva sau similar cu vopsea structurata.
Pe zona de parter și parțial pe la etajele superioare, clădirea se va termoizolata cu vata minerala bazaltică.
Tâmplăria exterioară este realizată din PVC de tip Salamander, Veka sau similar. Feroneria folosită este perimetrala cu balamale ascunse. Sticla folosită la vitraje va fi în sistem tripan. Ușa principală de acces în bloc va fi din aluminiu, proiectată pentru trafic intens.
Finisaje interioare
Pereții de compartimentare sunt executați din BCA Ytong de 12,5 cm. Pereții exteriori vor fi realizati din BCA Ytong de 30 cm, iar pereții dintre apartamente vor fi realizați din BCA Ytong de 30 cm. Toți pereții vor fi finisați cu un strat de tencuială aplicat mecanizat, două straturi de glet (glet de încarcare, glet de finisaj), respectiv vopsea lavabilă de culoare albă aplicată în două straturi. În băi și grupuri sanitare pereții vor fi placați cu faianță.
Pardoselile vor fi prevăzute cu sistem de încălzire cu sape armate pe suport de placă cu nuturi, cu rol de izolație termică și fonică.
Plafoanele vor fi placate cu gips carton sau tencuite. Tavanele vor fi integral gletuite, zugrăvelile urmând a se realiza cu vopsea lavabilă de culoare albă.
Sistem de încălzire:
Sistemul de încălzire utilizează apa caldă ca agent termic, iar pentru cedarea căldurii în încăperi s-a ales un sistem cu temperatura joasă (incalzire în pardoseală) realizată din țevi multistrat cu barieră de oxigen. Agentul termic va fi asigurat cu ajutorul a 4 centrale de bloc a câte 480kW fiecare.
Toate materialele folosite la finisaje și dotări sunt premium, oferind clădirii un înalt standard de calitate, durabilitate și siguranță.
Zona este bine conectata la mijloacele de transport in comun, oferind acces rapid la toate punctele de interes din oras. De asemenea, exista o varietate de magazine, restaurante si servicii la doar cativa pasi de proprietate.
Acest apartament este o oportunitate perfecta pentru cei care doresc sa traiasca intr-un mediu linistit, cu acces la facilitatile si convenientele orasului.
Pozele sunt cu caracter orientativ. Apartamentul se preda “la alb” (fara gresie, parchet si usi de interior), urmand ca finisajele (materialele + manopera) sa fie contractate separat, prin partenerii nostri Delta Studio la un pret preferential sau de la orice alta firma de finisaje interioare.
PRET 153938 euro+tva
Locuri de parcare subteran
tip Klaus – 23000 euro +tva ( 2 locuri )
Locuri de parcare suprateran
parcare simpla descoperita -18000 euro + tva
tip Klaus -22000 euro + tva ( 2 locuri )
Pozele sunt cu titlu de prezentare.
Pentru mai multe informatii sau pentru a programa o vizionare nu ezitați sa mă contactati!
Oana Sipoteanu 0721584584