Apartament 4 camere 167,75mp, 4 bai, zona Herăstrău

  • 671.000€
  • 4000€ /m²
, Herastrau,
  • 4.0
  • Camere
  • 4
  • Băi
  • 167.75
  • Suprafete apartamente
  • 5
  • Inaltime imobil
  • 2025
  • Finalizare construcție
Sold Out
  • 671.000€
  • 4000€ /m²

Apartament 4 camere 167,75mp, 4 bai, zona Herăstrău

, Herastrau,

Prezentare generală

ID-ul proprietății: ApLux104600
  • 4.0
  • Camere
  • 4
  • Băi
  • 167.75
  • Suprafete apartamente
  • 5
  • Inaltime imobil
  • 2025
  • Finalizare construcție

Adresa

  • Oraș Bucuresti
  • Stat / Judet București
  • Zona Herastrau

Detalii

  • ID-ul proprietății: ApLux104600
  • Preț: 671.000€
  • Suprafață: 167.75 m² utili
  • Camere: 4.0
  • Băi: 4
  • Finalizare construcție: 2025
  • Tipul de proprietate: Apartamente, Apartamente 4 camere
  • Vanzare/Inchiriere: Sold Out
  • Inaltime imobil: 5
  • Structura imobil: beton
  • Comision: 0% comision

Descriere

Cautați un apartament modern, deosebit cu 4 camere, 4 bai, situat într-un bloc nou, zona foarte atractivă din București, cu acces facil la parcuri, restaurante, cafenele și diverse facilitati ?
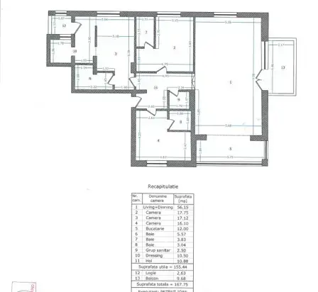
Vă pot prezenta un apartament cu 4 camere suprafata totala 167,75 din care balcon 9,68mp si logie 2,63mp, decomandat, al cărui spațiu generos permite o amenajare interioară deosebită și confortabilă ( living+dinning 56,15 mp). Fiecare cameră beneficiază de lumină naturală, iar designul inteligent al interiorului facilitează o organizare eficientă a mobilierului.
Dormitorul matrimonial al apartamentului dispune de baie proprie, un element foarte convenabil și apreciat, care oferă intimitate și confort. Această caracteristică face ca apartamentul să fie ideal pentru cupluri sau familii, permițându-le să se bucure de mai multă libertate și comoditate în utilizarea spațiilor.

Apartamentul este ideal pentru cei care își doresc un cămin primitor, în care să se simtă bine și să se relaxeze.
Apartamentul se vinde finisat, ceea ce înseamnă că va avea toate detaliile interioare finalizate, inclusiv pardoseli, gresie, faianță și uși interioare, oferindu-va astfel posibilitatea de a te muta imediat fără a mai face lucrări suplimentare.
Finisajele de calitate pot adăuga un plus de valoare și confort.

Imobilul se livrează finisat cu:
– încălzire în pardoseală și sistem de răcire prin tavan, ambele susținute de o pompă de căldură performantă – bucătăriile beneficiază de racord la gaz, oferind flexibilitate pentru amenajare.
– tâmplărie din aluminiu cu geam tripan,
– fațadă ventilată și izolație exterioară cu vată bazaltică, pentru un confort termic și fonic de excepție,
– parchet pentru incalzirea in pardoseala
– ceramica in bai
– usa metalica blindatea
– usi de interior Filomuro
– bai echipate complet
– lift Schindler

Pret apartament 671000+tva
Locurile de parcare sunt in subteran – pretul unui loc de parcare fiind 30.000 euro (TVA inclus). Tot in subsol se pot achizitiona si boxe, pretul lor este de 2.000 Euro + Tva/mp.

Termen : decembrie 2025

Zona Herăstrău este cu adevărat una exclusivistă, cunoscută pentru facilitățile sale de lux, arhitectura modernă a clădirilor și proximitatea față de Parcul Herăstrău. Această zonă este apreciată de cei care caută un stil de viață rafinat, oferind numeroase restaurante, cafenele, boutique-uri de lux și centre de recreere.
Locuințele noi sunt bine proiectate și beneficiază de finisaje de calitate superioară, atrăgând atât familiile, cât și profesioniștii care doresc să trăiască într-un mediu deosebit. În plus, accesul la transportul public și diversele atracții din zonă contribuie la crearea unui stil de viață comod și plăcut.

Pozele sunt cu titlu de prezentare.
Pentru vizionari sau mai multe detalii nu ezitati sa ma contactati !

Oana Sipoteanu 0721584584

360° Tur Virtual

Anunțuri similare

Compare listings

Comparaţie
Oana Sipoteanu
  • Oana Sipoteanu
apartamentelux
Prezentare generală a confidențialității

Acest site folosește cookie-uri pentru a-ți putea oferi cea mai bună experiență în utilizare. Informațiile cookie sunt stocate în navigatorul tău și au rolul de a te recunoaște când te întorci pe site-ul nostru și de a ajuta echipa noastră să înțeleagă care sunt secțiunile site-ului pe care le găsești mai interesante și mai utile.