Apartament 4 camere cu balcon, terasa si parcare I Bloc nou IUniriiI comision 0

  • 525.000€
  • 5679€ /m²
, Unirii,
  • 4.0
  • Camere
  • 2
  • Băi
  • 92.43
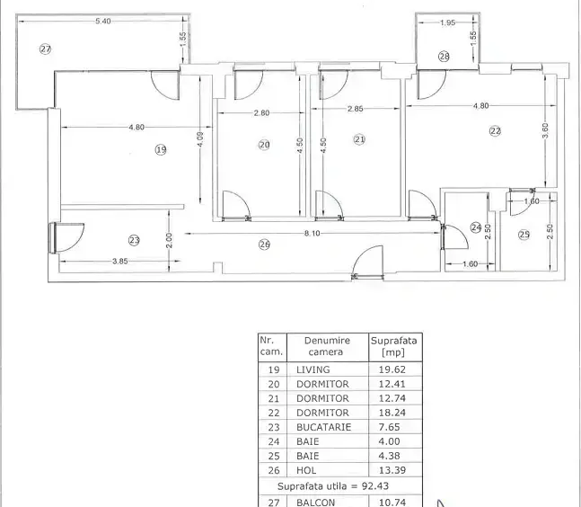
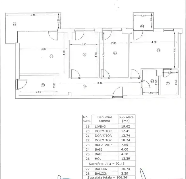
  • Suprafete apartamente
  • 4
  • Inaltime imobil
  • 2023
  • Finalizare construcție
Sold Out
  • 525.000€
  • 5679€ /m²

Apartament 4 camere cu balcon, terasa si parcare I Bloc nou IUniriiI comision 0

, Unirii,

Prezentare generală

ID-ul proprietății: ApLux111151
  • 4.0
  • Camere
  • 2
  • Băi
  • 92.43
  • Suprafete apartamente
  • 4
  • Inaltime imobil
  • 2023
  • Finalizare construcție

Adresa

  • Oraș Bucuresti
  • Stat / Judet București
  • Zona Unirii

Detalii

  • ID-ul proprietății: ApLux111151
  • Preț: 525.000€
  • Suprafață: 92.43 m² utili
  • Camere: 4.0
  • Băi: 2
  • Finalizare construcție: 2023
  • Tipul de proprietate: Apartamente, Apartamente 4 camere
  • Vanzare/Inchiriere: Sold Out
  • Inaltime imobil: 4
  • Structura imobil: concrete
  • Comision: 0% comision

Descriere

Doriti sa descoperiti un apartament atrăgător în mijlocul Capitalei ? Apartamentul are 4 camere decomandate, 2 grupuri sanitare, un balcon de 4mp si o terasa de 11mp, expunerea spre sud-vest. Apartamentul are suprafata utila totala 107 mp Finisajele și băile complet echipate sunt un mare avantaj, iar faptul că actele sunt deja pregătite pentru semnarea contractului face procesul de mutare mult mai simplu.
Combinarea relaxării dintr-un ansamblu modern cu energia vibrantă a Centrului Vechi este o oportunitate fantastică. Apartamentul cu încălzire în pardoseală și finisaje premium oferă un confort deosebit.
Un bloc boutique oferă un mediu de locuit cu adevărat special, caracterizat printr-un număr mai mic de apartamente, ceea ce contribuie la crearea unei atmosfere intime și prietenoase. Acest tip de ansamblu rezidențial promovează o comunitate unită, unde vecinii se cunosc și interacționează mai ușor. Este un loc perfect pentru cei care doresc să se bucure de liniște, dar și de viața socială activă.

Dacă aveti întrebări suplimentare sau aveti nevoie de mai multe detalii despre apartament, nu ezita să întrebati!

Un loc de parcare exterior dubla inclus in pret !

Oana Sipoteanu 0721584584

360° Tur Virtual

Compare listings

Comparaţie
Oana Sipoteanu
  • Oana Sipoteanu
apartamentelux
Prezentare generală a confidențialității

Acest site folosește cookie-uri pentru a-ți putea oferi cea mai bună experiență în utilizare. Informațiile cookie sunt stocate în navigatorul tău și au rolul de a te recunoaște când te întorci pe site-ul nostru și de a ajuta echipa noastră să înțeleagă care sunt secțiunile site-ului pe care le găsești mai interesante și mai utile.